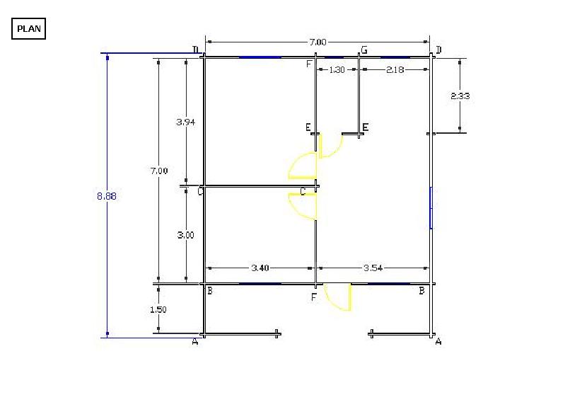
60m2-Plain Pied

- Ossature 145*45mm + Bardage - 7m x 7m + avancé 1,50m

Menuiseries en Bois Exotique, Portes Intérieures,

Prix = 12900 en KIT, 13000 Livré, 17400 Livré+Montage

 
 
Accueil
Envoyez un courrier électronique à maisonbois@sfr.fr pour toute question ou remarque.
Copyright © 2007 Floryus